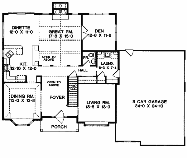
Newport Model Home
This 3 bedroom, two story home features 2 story foyer and great room accented by octagonal arches on the first floor with built in beams on the great room ceiling. Complete with living room, den, large utility-mud room area, his and her closets and large master suite. The Newport’s simplicity of design makes it less expensive and still allows for the open concept so many people enjoy.
At Zach Builders all plans can be modified to meet your needs including Exteriors, Removing or Adding rooms, Square Footage or an Entire Level.

