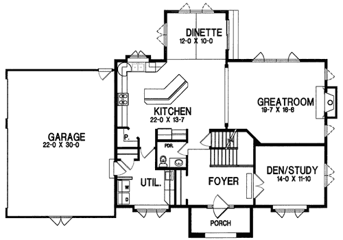
Hawthorne Model Home
A fantastic starter home for the young and/or upcoming family. This three bedroom home features walk-in closets, private master bath, den, great room and a very large kitchen dinette area that has allowed us to eliminate formal dining in order to provide for not only larger rooms, but to take a more formal approach to the kitchen dining area. The Hawthorn also features a three car garage, open impressive two-story foyer and large private laundry.
Approximately 2500 sq. ft.
At Zach Builders all plans can be modified to meet your needs including Exteriors, Removing or Adding rooms, Square Footage or an Entire Level.

