Avalon Model Home

Avalon Elevation 3288

Front Elevation

Avalon Back Elevation 3288

Back Elevation

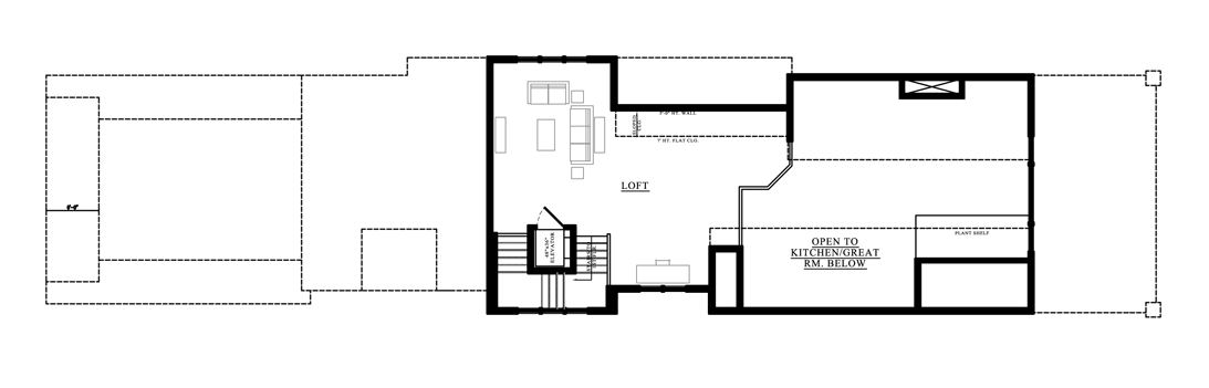
Floor Plans

click to enlarge

Avalon First Floor Plan

First Floor

Avalon Second Floor Plan

Second Floor

The Avalon Model totals around 3288 sq. feet. Square footage on the main level is around 2173sq. feet, loft is 731 sq. feet and the bonus room is 384 sq. feet. This lake home model is perfect for spending summers with family & friends or making it your full-time residence.

At Zach Builders all plans can be modified to meet your needs including Exteriors, Removing or Adding rooms, Square Footage or an Entire Level.

Click here to get more information about this home