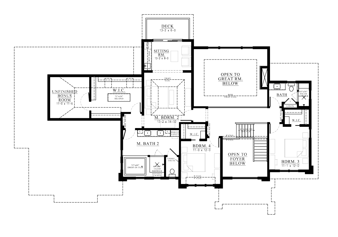
Arbor Model Home
The Arbor is approximately 3474 sq. feet and has an amazing walk-in closet in the master. It also features a 3.5 car garage, breakfast area, kitchen with island, a dedicated pantry, covered porch front entryway, sitting room and deck.
At Zach Builders all plans can be modified to meet your needs including Exteriors, Removing or Adding rooms, Square Footage or an Entire Level.

